美女免费高清在线观看电视剧_西西人体www大胆高清_8090新视觉理论电影电视剧免费观看_国产精品丝袜黑色高跟鞋

全國服務熱線021-64162222

法蘭球閥閥門首頁 > 產品展示 > 球閥 > 法蘭球閥 >

產品名稱:Q941F-10S電動upvc塑料法蘭球閥[ 2022-08-22 ]

訂購熱線:021-64162222
訂購傳真:021-62677999
質量穩定:實行全過程質量監控,細致入微全方位檢測!
價格合理:高效內部成本控制,減少了開支,讓利于客戶
交貨快捷:先進生產流水線,充足的備貨,縮短了交貨期!
  • 產品介紹
  • 規格尺寸
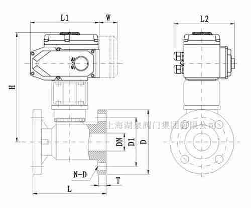
  • 結構圖片
  • 一、Q941F-10S電動upvc塑料法蘭球閥產品介紹

    上海湖泉閥門集團有限公司Q941F-10S電動upvc塑料法蘭球閥產品采用角行程電動執行器與塑料球閥組成,產品分為開關式、反饋式、調節式(智能型)三大類,近百種型號,上裝式結構,在高壓、大口徑條件下減少了閥體自身的連接螺栓,增強了閥門的可靠性且能克服系統自重對閥門正常工作的影響。廣泛應用于煤化工、石油化工、橡膠、造紙、制藥等管道中作介質的分流合流或流向切換裝置。只適用于溫度和壓力不高,介質為較潔凈的液體、氣體及腐蝕性介質,且介質中不能含有顆粒狀雜質,否則會引起物體刮壞密封圈,導致閥門產生泄露!如遇管路介質中含有纖維雜質或顆粒狀物質,則需要選用電動V型球閥!電動塑料球閥全部零件采用注塑件組裝成型,密封國采用F4。根據連接形式不同,可分為法蘭式、螺紋、承插以及最常見的活接雙由令,根據不同材質,分為PPR. PVDF, PPH, CPVC, UPVC等,C~100℃. -40℃~ 120℃。
    Q941F-10S電動upvc塑料法蘭球閥

    二、Q941F-10S電動upvc塑料法蘭球閥產品特點

    1、產品質量可靠、設計、造型美觀。
    2、材質衛生無毒耐磨損、易拆卸、維護簡單易行。
    3、性能可靠:軸承牙口電氣元件等關鍵零部件采用進口名牌產品。
    4、配套簡單:采用單相電源、外接線路特別簡單,也可做380V、直流電源。
    5、使用方便:免加油、免點檢、防水防銹、任意角度安裝。
    6、保護裝置:雙重限位、過熱保護、過載保護(選裝)。
    7、美觀大方:鋁合金壓鑄外殼、精細流暢、且可減少電磁干擾。
    8、精密耐磨:蝸輪輸出軸一體化特殊錒合金鍛造、強度高、耐磨性好。
    9、回差極小:蝸輪輸出軸一體化、避免了鍵聯結的間隙、傳動精度高。
    10、安全保證:通過1500V耐壓檢測,F級絕緣電機,安全有保障。

    三、電動塑料法蘭球閥技術參數

    公稱通徑 DN15~DN300(mm)
    公稱壓力 PN1.0MPa
    連接形式 法蘭式
    控制形式 開關型、調節型、防爆型
    驅動方式 電動控制(可帶手動手輪)
    使用溫度 -40℃~150℃
    電源電壓 AC220V、AC380V(其他定制DC24等)
    閥體材質 UPVC.RPP,CPVC,PVDF
    密封材料 丁晴橡膠(X)、氟橡膠(FKM)、三元乙丙橡膠(E)
     
     
  • 電動塑料球閥

上一篇:電動球閥q941f-25c dn400生產公司 / 下一篇:DN150法蘭電動球閥什么價錢