美女免费高清在线观看电视剧_西西人体www大胆高清_8090新视觉理论电影电视剧免费观看_国产精品丝袜黑色高跟鞋

全國服務熱線021-64162222

蝶閥知識閥門首頁 > 閥門知識 > 蝶閥知識 >

電動調節蝶閥廠家、規格型號

[ 2019-06-14 ]
電動調節蝶閥廠家規格型號

上海湖泉閥門有限公司生產的電動調節蝶閥采用一體化結構,有開關型和調節型兩種。開關型用單相交流電源直接控制閥門開閉。調節型有內裝閥門定位器、伺服放大器和外接伺服操作器等形式,采用輸入控制信號(4-20mA DC)即可控制閥門運轉。具有功能強,體積小,性能可靠等優點。配套簡單,流通能力大,特別適合于介質是粘稠,含顆粒,纖維性質的場合。它可廣泛應用于食品、環保、輕工、石油、化工、教學設備、造紙、電力等行業的工業過程自動控制系統中。

電動調節蝶閥主要技術參數

公稱通徑
(DN)

50

65

80

100

125

150

200

250

300

350

400

450

500

流量系數 (CV)

95

175

270

375

740

1400

2100

3250

4680

6200

8100

11000

15800

轉角(α°)

90°

工作電壓

220VAC、380VAC

工作溫度范圍℃

-40~250

輸入信號

4~20mADC、220VAC、24VDC

公稱壓力(MPa)

1.6、4.0、6.4

連接形式及標準

對夾式、法蘭式

閥體材料

ZG25、304、316、316L

閥芯材料

304、316、316L

閥座材料

304、316、F4

流量特性

近似等百分比

泄漏等級

V、VI


電動調節蝶閥執行機構
3610R系列電動執行器,是以AC220單相交流電源作為驅動電源,接受來自DCS、PLC系統或調節儀表操作器的DC4~20mA、DC0~10mA或DC1~5V控制信號的全電子式執行機構,該執行機構具備動作切換功能以及開度信號功能和手動等功能。大口徑蝶閥一般采用380VAC電動執行器,國內品牌如上海澳托克,揚州電力,天津二通等;國外品牌有英國羅托克、法國伯納德、德國西博思(西門子)等。
 

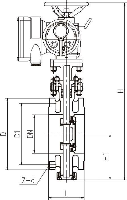
電動調節蝶閥形尺寸及重量

電動調節蝶閥

單位:mm

公稱通徑

結構長度L

外形尺寸

連接尺寸PN1.6MPa

參考重量

DN

法蘭式

對夾式

H

H

D

D1

Z-d

(kg)

50

108

43

112

530

165

125

4-18

19

65

112

46

115

530

185

145

4-18

22

80

114

49

120

565

200

160

8-18

25

100

127

56

138

600

220

180

8-18

28

125

140

64

164

640

250

210

8-18

43

150

140

70

185

705

285

240

8-22

50

200

152

71

200

775

340

295

12-22

64

250

165

76

243

945

405

355

12-26

99

300

178

83

250

1070

160

410

12-26

130

350

190

92

280

1140

520

470

16-26

188

400

216

102

305

1210

580

525

16-30

270

450

222

114

350

1335

640

585

20-30

350

500

229

127

380

1415

715

650

20-33

375

600

267

154

445

1605

840

770

20-36

560

700

292

165

480

1844

910

840

24-36

610

800

318

190

530

2040

1025

950

24-39

880



電動調節蝶閥質量及服務承諾:
  一、售前服務:如果買方沒有指定產品型號,我公司客服或銷售人員會根據買方人員提供的技術參數進行指導選型,或與買方技術人員進行技術交流,以確保產品準確選型。
  二、質保期為貨物驗收合格之日起壹年(極少數產品以動作次數為使用壽命),質保期內因產品質量問題導致的故障供方免費提供配件及咨詢服務。在收到用戶質量問題反饋信息后,我公司將在4小時內給出具體的解決方案。如果還不能解決問題,我公司將派出工程師在48小時(不可抗力因素除外)內到達現場解決問題。
  三、我公司產品在質保期結束后,依然提供技術服務和易損件成本供應。
  四、如果此質量及服務承諾與《消費者權益保護法》相抵觸,按《消費者權益保護法》執行。
本文標題:電動調節蝶閥廠家、規格型號 本文地址:http://m.mini361.com/tech-diefa/2286.html

上一篇:電動蝶閥的優缺點及安裝維護要點有哪些 / 下一篇:電動蝶閥到底應該怎么判斷好壞