美女免费高清在线观看电视剧_西西人体www大胆高清_8090新视觉理论电影电视剧免费观看_国产精品丝袜黑色高跟鞋

全國服務熱線021-64162222

球閥知識閥門首頁 > 閥門知識 > 球閥知識 >

浮動球閥工作原理及選用原則

[ 2019-10-22 ]
浮動球閥之所以稱為浮動球閥,是因為這種閥門的關閉件是一個球體,并且球體除了被兩個用來密封的密封圈支撐之外,不受其他任何部件的支撐(球體有一種懸浮在中間的感覺),故稱為浮動球閥。
    浮動球閥的密封原理,由于浮動球閥的球體不受任何部件的限制,故當閥門處于關閉狀態時,介質從閥門一端(上游)施壓,球體能產生一定的位移并緊壓在閥門出口端(下游)的密封面上,產生出口端密封。
    浮動球閥的優點:閥門流阻小,結構簡單,密封性好,在一定口徑、一定壓力范圍內,性價比高。
    浮動球閥的缺點:球體所承受工作介質的載荷將全部作用在下游密封圈上,同時,球體本身的重力也將直接由密封圈承受,故,如果閥門壓力過高,或者口徑過大,將會引起問題。
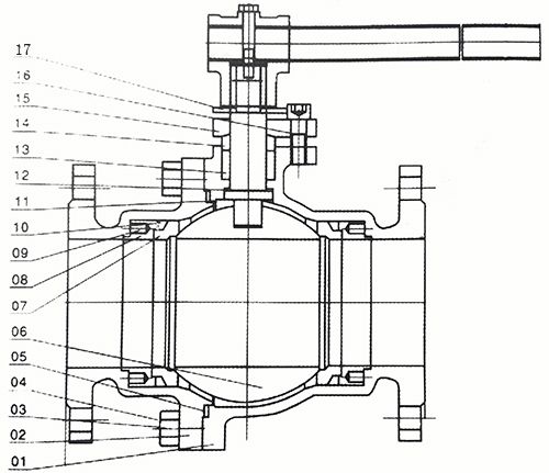
浮動球閥結構圖浮動球閥結構圖1

浮動球閥選用原則:
一、石油、天然氣的輸送主管線,需要清掃管線的,又需埋設在地下的,選用全通徑、全焊接結構的球閥;埋設在地上的,選擇全通徑焊接連接或法蘭連接的球閥;支管,選用法蘭連接,焊接連接,全通徑或縮徑的球閥。
二、成品油的輸送管線和貯存設備,選用法蘭連接的球閥。
三、城市煤氣和天然氣的管路上,選用法蘭連接和內螺紋連接的浮動球球閥。
四、冶金系統中的氧氣管路系統上,宜選用經過嚴格脫
五、低溫介質的管路系統和裝置上,宜選用加上閥蓋的低溫球閥。
六、煉油裝置的催化裂化裝置的管路系統上,可選用升降桿式球閥。
七、化工系統的酸堿等腐蝕性介質的裝置和管路系統中,宜選用奧氏體不銹鋼制造的,聚四氟乙烯為閥座密封圈的全不銹鋼球閥。
八、冶金系統、電力系統、石化裝置、城市供熱系統中的高溫介質的管路系統或裝置上,可選用金屬對金屬密封球閥。
九、需要進行流量調節時,可選用蝸輪蝸桿傳動的、氣動或電動的帶V形開口的調節球閥。
本文標題:浮動球閥工作原理及選用原則 本文地址:http://m.mini361.com/tech-qiufa/2397.html

上一篇:天然氣管道電動球閥的維護及常見故障排除方法 / 下一篇:電動球閥密封損壞的原因及處理辦法